Bridge Street, Pembridge
Property Features
- A Spacious Detached House
- 4 Good Size Bedrooms
- A Light Lounge
- Conservatory
- Separate Dining Room
- Kitchen
- Ground Floor Cloakroom/WC
- Garage
- Large Gardens To Side & Rear
- Village Location
Property Summary
The property is situated in the most attractive village of Pembridge, part of the renowned Herefordshire Black& White trail. Pembridge has good amenities to include a shop, tearoom, pub, school and beautiful riverside walks close by.
The market town of Leominster is only a short drive away offering a further range of amenities.
:
Full Details
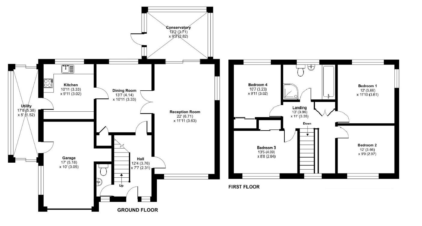
A canopy porch with outside lighting with a UPVC double glazed entrance door opens into a welcoming reception hall.
The reception hall has a UPVC double glazed window to side, a useful under stairs cloaks area and doors leading off to the ground floor accommodation.
The good size and light lounge has a feature fireplace with a gas fire standing on a tiled hearth, with a brick surround and mantle shelf over. There are UPVC double glazed windows to the front and side and a double glazed sliding door opening out a rear conservatory.
The conservatory has full length UPVC double glazed windows overlooking gardens and also a door giving access to a rear patio.
Double opening doors open from the lounge lead into a dining room, which can also be accessed from the reception hall.
The good size dining room is a wonderful environment for entertaining, having space for a family size dining table, a UPVC double glazed window overlooking gardens and a door into an under stairs storage cupboard with shelving. From the dining room a door opens into the kitchen.
The kitchen has a working surface with an inset stainless steel sink unit with cupboards and a space and plumbing for a dish washer under. Working surfaces continue with base units under of cupboards and drawers and built into the working surface is a 4 ring gas hob with a concealed extractor hood over and a double oven under. The kitchen has a range of matching eye-level cupboards, spaces for a fridge and freezer, a UPVC double glazed window overlooking the rear garden and a door giving access into a side porch. The kitchen and adjoining ding room offer great potential, to create an open plan family kitchen/dining room.
From the reception hall a door opens into a ground floor cloakroom/WC. Having a low flush WC, wash hand basin and a frosted UPVC double glazed window to the front.
From the reception hall a staircase rises up to a gallery landing having a UPVC double glazed window to the front, an inspection hatch to the loft space above and double opening doors into a large airing cupboard with shelving and a hot water cylinder. Doors from the landing lead off to the bedroom and bathroom accommodation.
Bedroom one enjoys a double aspect of a UPVC double glazed window to the side overlooking the River Arrow and a UPVC double glazed window to the rear.
Bedroom two is also a good size bedroom having a UPVC double glazed window overlooking gardens to the front.
Bedroom three has sliding doors into a built-in wardrobe fitment with hanging and shelving and a UPVC double glazed window overlooking gardens to the rear.
Bedroom Four is a good size bedroom, having a UPVC double glazed window to the front and a built-in wardrobe fitment.
The spacious bathroom has 4 piece suite to include a corner shower cubicle with an electric shower over, a bath, a low flush WC, and a pedestal wash hand basin. The bathroom has tiled splashbacks, a frosted UPVC double glazed window to the rear, an extractor fan, towel rail and a shaver socket.
OUTSIDE.
The property is situated in a most attractive position on the edge of the popular village of Pembridge. To the font is a long driveway providing parking for plenty of vehicles and also a large attractive and well stocked floral and shrub border, a lawned garden, outside lighting and a cold water tap.
At the end of the driveway an up and over door gives access into an integral garage.
GARAGE.
The garage has power, lighting and a window and a door to the side.
Set to one side of the property is a lawned garden with attractive views and leads to the rear garden.
REAR GARDEN.
To the rear is s a good size garden, ideal for young families and keen gardeners alike. There is a patio seating area enjoying the daily sunshine, a large lawned garden and 2 timber built storage sheds.
SERVICES.
All mains services are connected and the property has and gas fired central heating.
Reception Hall
Lounge 6.71m x 3.68m (22 x 12'1")
Conservatory 3.76m x 2.82m (12'4" x 9'3")
Dining Room 4.14m x 3.28m (13'7" x 10'9")
Kitchen 3.33m x 3.02m (10'11" x 9'11")
Ground Floor Cloakroom/WC
Bedroom One 3.66m x 3.58m (12' x 11'9")
Bedroom Two 3.71m x 2.95m (12'2" x 9'8")
Bedroom Three 3.23m x 3.05m (10'7" x 10')
Bedroom Four 4.11m x 2.59m (13'6" x 8'6")
Bathroom
Garage
Rear Garden



































































